TH HOUSE

TH HOUSE
Year: 2018
Location: TP. Thanh Hóa

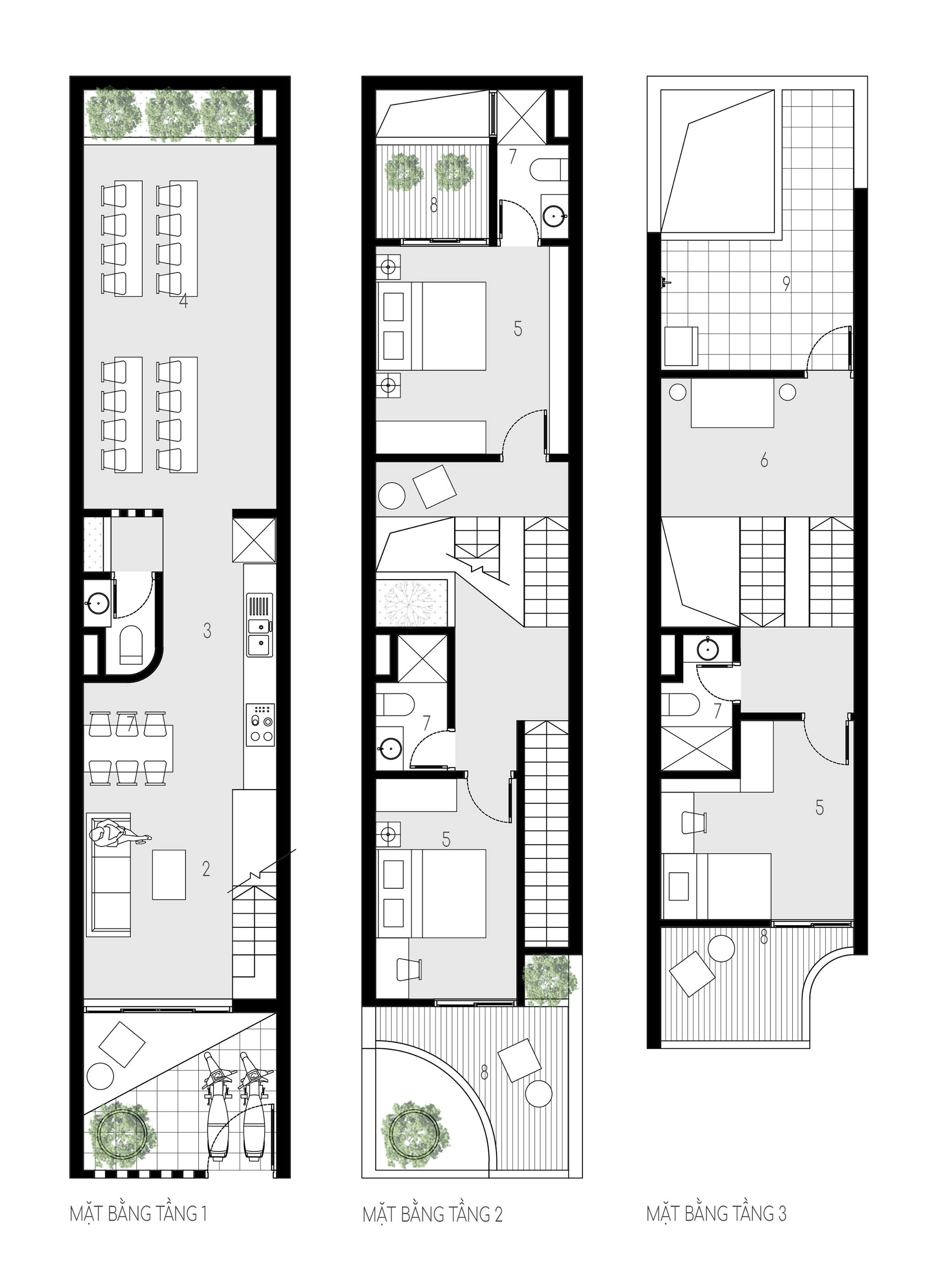
Dự án TH House là dự án kết hợp giữa team cùng với các anh em 22 Architects thực hiện vào năm 2018. Dự án thuộc dạng nhà ở lô phố cấu trúc được đặt lệch tầng với không gian linh hoạt. Ứng dụng vật liệu địa phương cũng như mang đến sự mộc mạc trong thiết kế giúp cho ngôi nhà trở nên đặc biệt hơn. Thiết kế cũng hướng đến sự hài hòa giữa công năng và thẩm mỹ kiến trúc.

Send Message Success!

Lựa chọn số 1 về lĩnh vực thiết kế và thi công nhà ở

Contact Info
Office Address
UP