QB HOUSE & COFFEE

QB HOUSE & COFFEE
Year: 2023
Location: TP. Quảng Bình

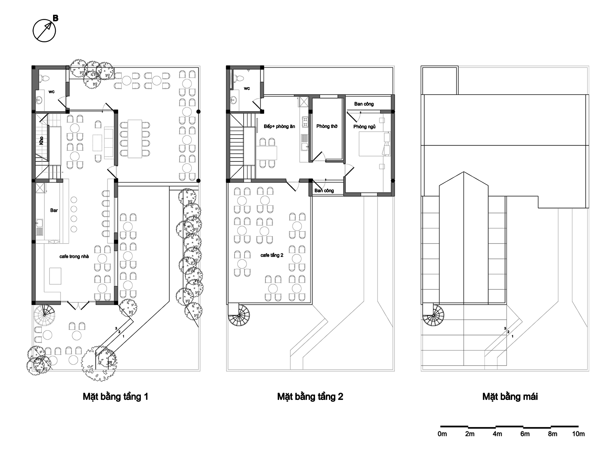
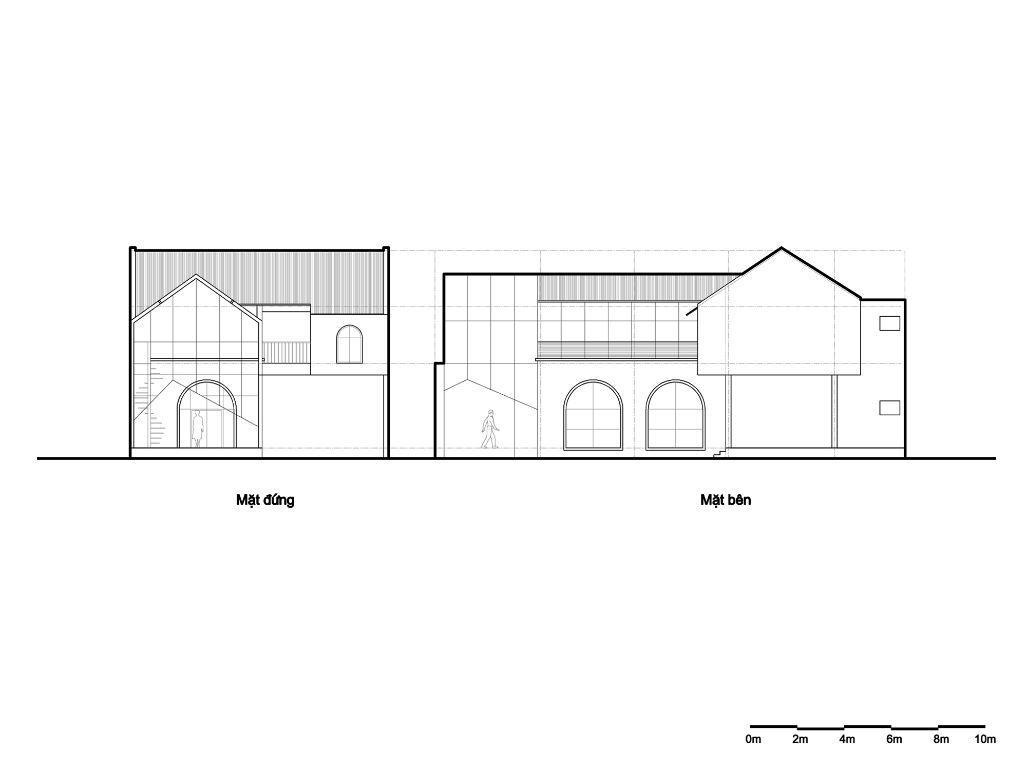
Ở dự án QB house & coffee chủ đầu tư đưa ra đầu bài thiết kế quán coffee hai tầng phục vụ cho nhu cầu kinh doanh nhưng đi kèm một không gian dạng căn hộ studio với một phòng ngủ và có đầy đủ các chức năng cần thiết như bếp ăn vệ sinh riêng và phòng thờ. Team thiết kế làm việc, nghiên cứu đưa ra phương án lấy hai màu sắc vật liệu chính là gạch trần không trát và các mảng khối trắng làm sự tương phản để tạo nên điểm nhấn cho công trình cũng như phân định không gian kinh doanh coffee và không gian dạng căn hộ cho gia chủ. Phần căn hộ nằm ở tầng hai với khối bay ra, đầy đủ các chức năng cùng một tầng khép kín. Phần kinh doanh coffee nằm ở tầng một, sân vườn và một phần ở tầng hai.

Send Message Success!

Lựa chọn số 1 về lĩnh vực thiết kế và thi công nhà ở

Contact Info
Office Address
UP